広島の不動産住宅情報
広島の不動産売買、買取・収益不動産、投資物件・中古マンション、中古住宅、一戸建て、新築建売住宅、 土地の最新情報!買取と売却物件も同時募集中082-297-1341受付24時間
コンテンツへ移動
ホーム
会社概要
個人情報
お問い合わせ
不動産売却
売却の募集
賃貸物件検索
売買物件検索
空家・空き地管理サービス
リフォーム
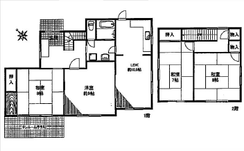
C37363
投稿者:
jsh
|
公開日:
2012年12月17日
|
フルサイズ:
×
ピクセル
C37063
C38353
パーマリンク
をブックマーク
コメントは受け付けていません。